House For Sale In Long Island NY
Searching for a home in Long Island, NY? The market offers everything from single-family residences to multi-level colonials. Families often enjoy ranch-style homes with open layouts or split-level designs that create private and shared spaces. For buyers seeking affordability and less upkeep, condos and townhouses are excellent choices, often located near shops and schools. Waterfront homes add luxury with stunning views and private access to the shoreline. Bungalows provide charm and character, while new construction properties bring modern finishes and energy efficiency. Long Island’s variety of home styles makes it possible to find the perfect match for your needs.
Residential Sale For Sale
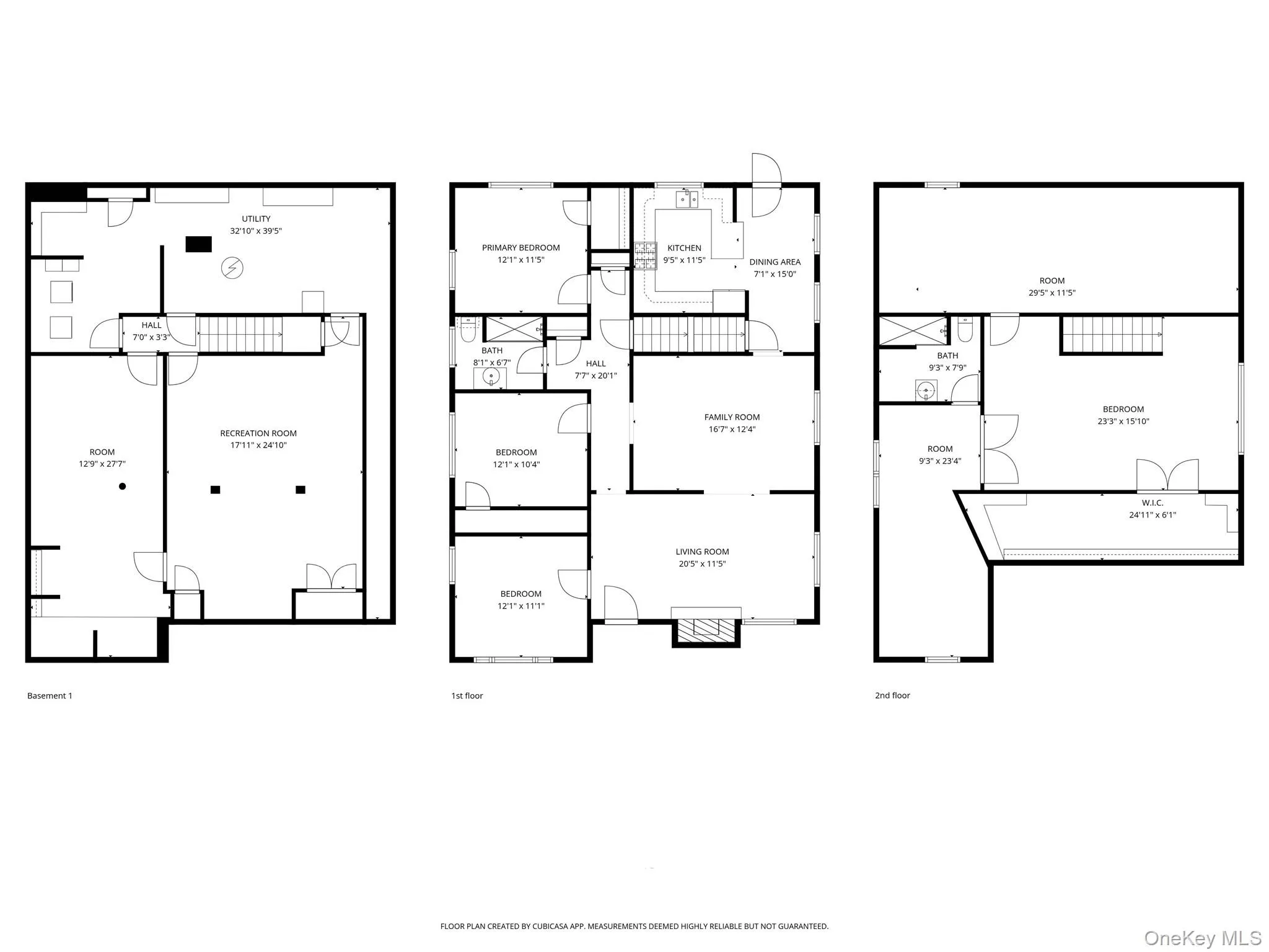
67 Lawrence Avenue, Hempstead, New York 11563
This spacious 4-bedroom, 2-bath single-family home is the perfect opportunity for buyers looking to customize and create their dream residence.
Featuring a huge primary bedroom with generous proportions and abundant natural light, this home offers incredible potential for expansion, redesign, or modern updates. The flexible layout provides ample living space, well-sized additional bedrooms, and room to reimagine the kitchen and baths to your personal taste.
With solid bones and endless possibilities, this fixer-upper is ideal for investors, contractors, or homeowners ready to add value and build equity.
Bring your vision and transform this house into something truly special!
Our Procedure
Our simple, step-by-step process ensures a smooth experience for buying new property without any worries or hustle.
Find Your Ideal Home With Listing
Go through the our all listings and find the ideal home that is relevant for your requirements.
Fill Out The Form
Click on the listing you like and then fill out the form to get start with your buying journey.
We Get Back To You
We guide buyers through offers and agreements to secure the best outcomes.
Closing & Transition
We handle all paperwork, ensure a smooth closing process, and support you through your next steps.
Why Choose Kaya Homes NY
Our simple, step-by-step process ensures a smooth experience for buying new property without any worries or hustle.
Local Knowledge That Matters
We know Long Island street by street — not just by ZIP code. From districts to commute routes, we help you buy smarter based on real neighborhood insight.
We Don’t Sell, We Guide
You won’t find any sales pressure here. We focus on what works best for you, offering honest input so you can make confident, informed choices.
Quick Response, Real Support
You won’t be left waiting on answers. We stay connected through every step of the process, so your questions get real replies — not delays.
Access to Listings Before They’re Public
We tap into local networks to get early access to listings — giving you a head start in a competitive market.
We Handle the Stress, You Stay in Control
From inspections to paperwork, we manage the chaos so you can focus on the fun part — finding a place you’ll love.
We Work Around You
Tight schedule? Need to tour after hours or on weekends? We’re flexible. We work how and when it’s convenient for you.
We Help You Think Long-Term
It’s not just about buying now — we’ll help you choose a home that fits future needs too, like family growth or property value trends.
We Treat Your Home Search Like It’s Our Own
We’re not here to just close a deal. We look out for your best interest like we would for our own family. Every decision is made with care.
Areas We Are Serving
Explore the areas and neighborhoods we serve to find your perfect location
East Rockaway
Lynbrook
Hewlett
Hewlett Harbor
Oceanside
Valley Stream
North Woodmere
Woodmere
Baldwin
Freeport
Malverne
Merrick
Bellmore
Cedarhurst
Reviews
Read what our clients have to say about their experience with us
Kaya Homes NY
4.8Out of 5 starsOverall rating out of 22 Google reviews
I highly recommend Kaya Homes if you are looking to buy or sell your home. My home was sold for over ask within 1 week! The process was so simple and easy. Avi had a professional photographer photograph our home and has excellent marketing strategies which led to a speedy transaction. Thank you !!!
Bad Services.
KAYA Homes, and specifically Kamy, is a real estate business with a heart. Before I signed a contract Kamy gave me months of her time, business acumen and understanding. I have bought/sold my homes over many decades. Never have I known a realtor to be so incredibly kind. Everything about how KAYA Homes conduct their business is above reproach.
I had the absolute pleasure of working with Kamy when leasing my new apartment, and I couldn't be happier with the experience! She was fantastic to work with, simplifying the rental process and providing thorough explanations every step of the way. Highly recommend!
This is the third year im using Kaya Homes for my rental, they are very professional. They walk you through everything from start to finish. The owner Kami is awesome!! She is very responsive A+ I highly recommend kaya homes!!
We started our journey with Kaya homes a while back when my husband met Kamy. He knew instantly that we found the right ones to help us with purchasing a new home. Kamy is highly responsive, thoughtful, considerate and very professional on her approach with finding you the right home. We wanted to stay in the area and with such a crazy market, I didn't think it would be possible for us to find our home, but we did. Kamy's reassured us and said we will find your home and we did. Thank you Kamy and also meeting Izzy was a bonus, great family owned business, truly you will not be disappointed. If you are looking to rent, own or sell give them a call.
Absolutely wonderful to work with! I highly suggest if you are looking or selling she is definitely your go to!
Amazing experience with Kaya Homes. She was very helpful and found us our dream home as fast as anyone could wish for!
WOW! Kamy went above and beyond to find us an apartment, my lease was over and I needed to move ASAP and couldn’t find any rentals but when I got in contact with Kamy at Kaya Homes she casted all my worries and stress away. I’ve worked with other realtors in the past which was ok but Kaya Homes over exceeded all of my expectations. Kamy was able to find us a beautiful contemporary apartment in the neighborhood that I appointed and that fit right in our price range within a month we moved in. Kamy is extremely kind, friendly, transparent professional, communicative and easy to reach to answer any of our questions at all times. In addition, since we’ve moved the landlord continues to maintain the apartment beautifully: they provide a cleaning service who comes in to clean inside and outside the complex, landscaper comes weekly, the garbage is pick up 2-3x a week, if there’s ever any issue or something needs fixing they send someone the next day which is a plus because you know they CARE AND APPRECIATE THEIR TENANTS. I recommend Kaya Homes to all my friends & family and to anyone who needs a realtor because they are simply the VERY BEST IN THE BUSINESS. Thank you again Kamy.
I had the pleasure of working on my home selling with Kaya homes and specialty with Kamy Roditi who is a very professional and reliable person. Kamy worked very on my transaction with a fair and quick way and honestly without her my home would not have been sold as fast and for the best possible price as it was. I would highly recomand Kaya homes and Kamy for any Real Estate and business venture, selling and buying Real Estate .
If you are in the market for a new home, I highly recommend going to see Kamy Roditi @ Kaya Homes. She is one of the most knowledgeable realtors I've ever met in the industry hands down. She's honest, trustworthy, responsive and an all around pleasure to work with. She worked diligently to help find the perfect house for my family and smoothly guided me through the process by answering all of my questions thoroughly. Buying a new home can be stressful, but it doesn't have to be if your lucky enough to work with Kamy Roditi. You'll be in good hands, I promise!
I thought about selling my house myself and I’m so glad I didn’t. Kaya Homes was a total blessing for me, the buyers of my home were beyond difficult and they handled every step for me beyond my expectations. They took the stress off of me entirely. I’d highly recommend them to anyone. Thank you again Kaya Homes!!
Highly recommend the team at Kaya Homes. The team is not only knowledgeable but also provides great advice for all real estate needs. Weather your looking to buy, sell, rent or get advice, Kaya homes should be your first call.






